Cómo citar: Salazar Valle, Marco. "Tipos coloniales no declarados en la arquitectura moderna ecuatoriana". Dearq no. 36 (2023): 26-36. DOI: https://doi.org/10.18389/dearq36.2023.04

Tipos coloniales no declarados en la arquitectura moderna ecuatoriana

Marco Salazar Valle

mhsalazarvalle@gmail.com

Universidad Central del Ecuador (FAU UCE)

Recibido: 16 de junio de 2022 | Aceptado: 1 de febrero de 2023

El estudio tipológico de viviendas ordinarias en Quito para una actividad académica de diseño dio lugar al cuestionamiento de las limitaciones de los compendios teóricos locales respecto a incorporar obras no canónicas. El artículo parte desde esta idea y analiza cómo el diseño de viviendas de Sixto Durán Ballén y Diego Ponce Bueno es retratado en publicaciones arquitectónicas relevantes, a través de distintos usos de la noción de tipo, que valida una idea de modernidad que promueve la reproducción de la colonialidad en espacios domésticos. El texto propone el enfoque proyectual en el espacio comunal como base de experimentación decolonial.

Palabras clave: tipo, decolonial, Quito, vivienda, informal, canon, domesticidad.


En 2017, propuse usar una metodología para un ejercicio académico de diseño siguiendo las ideas del arquitecto argentino-chileno Enrique Walker (2017), acerca de Lo ordinario en un curso de quinto semestre de la Universidad Central del Ecuador, al que llamamos Casas Encontradas (fig. 1). Lo ordinario, según Walker, se relaciona con aquello que está fuera de los límites convencionales de la disciplina, pero que puede incorporarse al transformar ciertas herramientas disciplinares. El taller buscaba fijar un horizonte epistémico en la arquitectura informal para obtener conocimiento de ella sin recurrir a la validación del canon moderno, como en el caso de las guías arquitectónicas de Tokyo de Atelier Bow-Wow (Kajima, Koruda y Tsukamoto). De alguna forma, se intentó inconscientemente lo que Walter Mignolo define como pensamiento decolonial: el desobedecer la episteme oficial arquitectónica al “desvincularse (epistémicamente y políticamente) de la red del conocimiento imperial […] de la administración disciplinar” (2011, 143), al categorizar ejemplos de arquitectura informal como tipos arquitectónicos.

Figura 1

Figura 1_ Casas Encontradas, 2016. Fuente: autor.

El ejercicio tuvo como base la observación de los estudiantes acerca de atributos interesantes de edificios que convencionalmente encontrarían en sus rutinas diarias sin restricciones teóricas. Las estudiantes Mayorga y Santillán (2016) eligieron un edificio del famoso arquitecto modernista ecuatoriano Sixto Durán Ballén.1 Ellas demostraron cómo el edificio representaba una condición “informal” que habría sido anónimamente parte de su contexto, y que así pudo pasar inadvertido, a pesar de su (relativamente no tan conocida) autoría. Un anómalo techo a dos aguas reafirmaba la condición informal del edificio de Durán Ballen, en lo que de otra forma habría sido una disposición modernista de losas horizontales (fig. 2).

Figura 2

Figura 2_ Casal Toledo de Durán Ballén. Fuente: Katy Santillán y Fernanda Mayorga, en Casas Encontradas.

Sin embargo, el texto Sixto Durán Ballén: planificador, urbanista y arquitecto pionero de la arquitectura en Ecuador, editado por Trama (la editorial más prominente de temas arquitectónicos en Ecuador), que presenta sus obras completas bajo una revisión comprensiva, describe este mismo edificio de otra manera. Este edificio escogido por las estudiantes Mayorga y Santillán se denomina Casal Madrid, y está categorizado como parte de las series de edificios inmobiliarios llamados Casales (la versión española de una villa rural), cuyo techo a dos aguas les da una cualidad distintiva (Moya y Peralta 2014, 113). Lo que parece una desviación, es un gesto calculado para distinguir un grupo de proyectos inmobiliarios que siguen un modelo utilitario y de marketing para crear una imagen consistente.

En palabras de Walter Mignolo, lo que aquí se refuerza es la episteme punto cero, “la pretensión de una epistemología singular y particular, geo-histórica y bio-gráficamente localizada, para ser universal” (2011, 81). La episteme punto cero está presente geohistóricamente cuando las ideas del modernismo norteamericano y europeo ayudan a describir los Casales de Durán Ballén como una expresión racional del dictum la forma sigue a la función: “sus fachadas comunican la función habitacional […] sus vanos trabajados con vanos modulados expresan la función” (Moya y Peralta 2014, 113). Adicionalmente, el nombre Casales ha sido acuñado (biográficamente) por la experiencia del arquitecto en Barcelona. Sin duda, la imagen de los edificios Casales de Durán Ballén refuerza la idea de una influencia colonial, incluso ratificada en su nombre como una alegoría española. Pero, a pesar de cualquier desviación del canon moderno provocada por esta imagen colonial, los discursos disciplinares validan esta producción como una auténtica experiencia modernista.

No obstante, otro aspecto del legado colonial se revela cuando se inspecciona la solución de planta típica de estos proyectos, que por virtud de su repetición se vuelven tipológicos. En los edificios Casales de Durán Ballén hay una coexistencia bizarra del funcionalismo modernista doméstico con un espacio para un (no reconocido) dormitorio oscuro, disfuncional e irracional, localizado siempre al lado de la cocina: el cuarto de servicio, o el espacio para la “empleada puertas adentro”.2

la imagen como tipo colonial

Los cuartos de servicio, como un rezago colonial, no son únicos de la arquitectura moderna ecuatoriana. El modernismo brasileño sintetiza la senzala, la residencia para personas esclavizadas en la época colonial, en la forma de cuartos de servicio, que incluso en reducidos departamentos se conecta con espacios de lavandería (Fantinatti 2018). Similar a la persistencia de la senzala en viviendas modernas brasileñas, la domesticidad en Ecuador dependía del trabajo de sirvientes. El huasipungo, aún vigente después de la Colonia española, comparte características con la senzala; ambos fueron esquemas de distanciamiento, que separaban físicamente a la servidumbre pero que la incorporaban en la vida diaria de la aristocracia en la forma de trabajo doméstico forzado. El rol del huasipungo también ha sido sintetizado en los esquemas funcionales de las viviendas modernas de Quito.

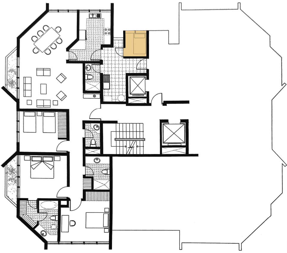
La presencia del cuarto de servicio como un espacio pobremente ventilado e iluminado, en el cual a duras penas cabe una cama, es recurrente también en las obras del arquitecto Diego Ponce Bueno —emparentado con el arquitecto uruguayo Gilberto Gatto Sobral—, quien fue socio de Durán Ballén (figs. 3 y 4). Ponce Bueno, con estudios en Río de Janeiro, es uno de los pocos arquitectos en tener una revisión comprensiva de su trabajo por parte de la editorial Trama, tal y como sucede con Durán Ballén. Escojo el caso de Ponce Bueno, porque esta revisión minuciosa de sus obras por parte de autores locales permite trazar las narrativas tipológicas en su trabajo. A pesar de que él haya evitado la consistencia tipológica en sus obras, “de modo que el tipo no gravite de manera incondicional y sea posible plantearse nuevas soluciones respecto a las acostumbradas” (Moya 2014, 16), el tipo radica en la imagen de domesticidad construida a través de sus proyectos. Esta imagen es codependiente con la herencia de las convenciones coloniales de coexistencia espacial de la servidumbre indígena con familias elitistas en Quito (Kingman 2006, 191).

Figura 3

Figura 3_Planta típica del proyecto Torres de Almagro de Diego Ponce Bueno. Fuente: Ponce y Cueva (2014, 30).

Figura 4

Figura 4_Planta típica del proyecto Torres Panorámicas de Diego Ponce Bueno. Fuente: Ponce y Cueva (2014, 184).

Consideremos el concepto de tipo de Antoine-Chrysostome Quatremère de Quincy. Podemos notar que él se refirió a la noción de un modelo que estuvo en uso no solamente en prácticas arquitectónicas, sino también en la religión: el tipo como una manifestación del carácter, como una imagen susceptible de ser reproducida más que la síntesis de un grupo de edificios que comparten características similares. Es decir, en esta primera definición hay una intención por racionalizar a priori la producción arquitectónica, la cual debería tener como cometido el repetir soluciones que denotan cierto carácter. En consecuencia, en el caso de los diseños de espacios domésticos de Ponce Bueno, la arquitectura está tipificada (aunque sin declararlo) para desplegar características físicas de una coexistencia que preserva un carácter colonial, una imagen de la superioridad del colonizador: “la inhumanidad de Humanitas,3 la irracionalidad de lo racional, los residuos despóticos de la modernidad” (Mignolo 2011, 93).

La definición de tipo de Quatremère de Quincy pertenece al umbral de la arquitectura como una disciplina moderna en el siglo XVIII. Desde entonces, el tipo arquitectónico evoluciona hacia una entidad abstracta que permite el despliegue utilitario e intelectual de una episteme arquitectónica racionalizada; en otras palabras, la ambición por catalogar tipos históricos como el conocimiento absoluto de las posibilidades arquitectónicas o la evaluación científico/utilitaria de alternativas funcionales (Vidler 1977, 95-115). En cualquier caso, los tipos buscan una determinación universal de lo que existe o, al menos, de lo que se ha incluido dentro de los límites disciplinares.

Esta inclusión implica una clasificación. Como Walter Mignolo explica, “la clasificación racional significa clasificación racial. Y las clasificaciones racionales no derivan de la ‘razón universal', sino de ‘conceptos humanos' acerca de la razón universal” (2011, 83). Empezando por los predecesores de la tipificación arquitectónica en el siglo XVIII, la arquitectura de las Américas no fue negada, sino establecida como salvaje y pintoresca, lo cual podría caber en la definición contemporánea de lo informal. El concepto de tipo elaborado por Quatremère de Quincy reconoce la necesidad de un modelo como el origen de todos los subsecuentes ejemplos de arquitectura; la noción de modelo original desestima todas las otras posibilidades no europeas de origen (Vidler 1987, 157).

La definición y uso del tipo arquitectónico como una episteme disciplinar en el siglo XVIII coincide con las búsquedas de superioridad racial europea a través de clasificación científica. Distintas producciones culturales se estimaron promotoras de diversos tipos arquitectónicos, como Irene Cheng lo describe en “Structural Racialism in Modern Architectural Theory” (2020, 137-143). Sin embargo, Tom Avermaete discute la tipología como una episteme operativa fundamental en un kit de partes para la práctica arquitectónica en su texto “A Black Box: Architecture and its Epistemes” (2021, 71-74). Junto a la fenomenología, la semiótica y la praxeología, Avermaete insiste en la síntesis del siglo XVIII de tipos arquitectónicos como un compendio formal de precedentes y como un punto de partida para el diseño arquitectónico. Adicionalmente, Avermaete incluye el razonamiento tipológico como una herramienta para leer empíricamente morfologías urbanas reconociendo las consideraciones de Muratori, y más tarde Rossi, acerca del tipo como una episteme moderna.

Avermaete (2021) afirma el inevitable y, a menudo, inconsciente uso de epistemes, como la tipología, en prácticas arquitectónicas y análisis territoriales; por consiguiente, puede ser implícito que la noción de tipo como una episteme racializada permanece sin ser cuestionada. Considerando que cada retorno a la noción de tipo alude a sus orígenes en la época de la Ilustración francesa —desde Muratori a Rossi a Avermaete—, debería notarse también que Quatremère de Quincy “presagió un tropo de europeos siendo considerados las personas capaces del progreso y del avance histórico, mientras otros grupos fueron condenados a un estancamiento histórico” (Cheng 2020, 137).

Para los editores de Trama, el tipo permite que las obras de Ponce Bueno puedan inscribirse en los discursos canónicos del movimiento moderno. Aquí, el tipo se utiliza como una herramienta conceptual para racionalizar la producción del arquitecto en un esquema, en apariencia, coherente que resulta paradójicamente en obnubilar lo concreto de la obra de Ponce Bueno y su formación brasileña. Por ejemplo, la revisión de su trabajo no toma en cuenta las semejanzas de sus obras con ejemplos de arquitectura paulista, como es el caso de su edificio La Filantrópica, que comparte soluciones formales con el edificio FIESP de Rino Levi. Al contrario, los editores de Trama declararon una omnipresencia de Le Corbusier, aun cuando ninguna de sus obras se asemeja en concreto a alguna referencia lecorbusiana. Le Corbusier no solo es acreditado como una influencia “moderna pura”, que estableció “el estilo y discurso que lo acompañaron el resto de su vida” (Peralta 2014, 38), sino que también es retratado en dos páginas completas, ocupando más espacio que cualquier retrato del propio Ponce Bueno en el libro Diego Ponce Bueno: arquitectura y ciudad (Ponce y Cueva 2014).

Otras referencias directas a Le Corbusier se mencionan como principios generales que Ponce Bueno alcanza en su trabajo, como “el concepto fundamental de la estructura puntual faculta la fachada libre y la ventana corrida […] la estructura puntual y la planta libre están presentes en sus edificios en altura […] la terraza jardín que permitía el dominio de un plano final para el uso y la contemplación a diferencia de las cubiertas inclinadas” (Peralta 2014, 38). Esta generalización del modernismo como un conjunto de reglas permite a la obra de Ponce Bueno convertirse en un representante autorizado de ese canon.

En consecuencia, la inscripción de la obra de Ponce Bueno en la generalidad de un canon es una operación tipológica que selecciona fragmentos de sus edificios para calzarlos en la imagen de un discurso predefinido. Esta noción de tipo es similar a la primera definición de Quatremère de Quincy de tipo como imagen, que es a su vez similar a la noción arcaica de tipología usada por la religión cristiana en el siglo XVI para ajustar la evidencia empírica del Nuevo Mundo a los tropos preestablecidos en la Biblia (Cañizares-Esguerra 2009, 237-264). Dentro de esta noción de tipología, la realidad empírica se inscribe en términos más comunes que ayudarían a entenderla a una distancia epistémica (como las Américas deformadas dentro de historias bíblicas para que las asimilaran los europeos). En este proceso, la realidad empírica necesita simplificación (abstracción) para encajarla dentro de un discurso alienante.

Esta abstracción, por virtud de su simplificación, niega formaciones epistémicas alternativas que podrían contradecir la episteme del punto cero (Lara 2022). Los discursos generales acerca de la modernidad para los representantes locales del canon, como en el caso de Ponce Bueno y Durán Ballén en Ecuador, permiten encajar su obra dentro de la episteme del punto cero, al negar aspectos más decidores en su trabajo, como las estrategias consistentes y reiterativas en sus diseños de disponer un cuarto de servicio en respuesta a un requerimiento funcional no declarado. En otras palabras, el discurso arquitectónico local “purifica” prácticas arquitectónicas con dictums modernistas, pero niega el lado más oscuro de esta modernidad, el cual es visible solamente al poner “la verdad [el canon universal de la arquitectura moderna] en paréntesis” (Mignolo 2011, 52).

una opción decolonial de tipo / encontrando otros comunes

Fernando Luiz Lara y Felipe Hernández han avanzado en esfuerzos particulares para descolonizar el conocimiento arquitectónico. Sus textos Decolonizing the Spatial History of the Americas (2021) y Spatial Concepts for Decolonizing the Americas (2022) son marcos teóricos seminales que, en este caso, nos permiten localizar el uso de tipo como una episteme para la perpetua validación colonial en los discursos arquitectónicos ecuatorianos. Una noción de tipo que contribuye a persistencias coloniales ratifica que “los campos de la historia y teoría arquitectónica se enfocan en la construcción y mantenimiento de un canon, el cual provee las bases para el juzgamiento arquitectónico: lo que es y lo que no es arquitectura” (Lara y Hernández 2022, 2). Por tanto, los intentos por descolonizar la noción de tipo tratan de liberar esta episteme arquitectónica para dejar atrás sus pretensiones canónicas y para aceptar empíricamente el medio construido local en sus complejidades formales y culturales.

Walter Mignolo define la opción colonial como “lo analítico de la construcción, transformación y sostén del racismo y patriarcado que han creado las condiciones para construir y controlar una estructura de conocimiento, ya sea fundamentada en la palabra de Dios o en la palabra de la Razón y la Verdad” (2011, xv). En el caso del modernismo ecuatoriano, como ha sido demostrado con los ejemplos de Sixto Durán Ballén y Diego Ponce Bueno, podemos concluir que el tipo es una episteme para calzar la producción arquitectónica en una imagen preestablecida, la cual se asemeja al aura religioso del colonialismo (en este caso el canon no tiene su origen en la Biblia, sino en los discursos generales del movimiento moderno). Entonces, las implicaciones coloniales de los estudios tipológicos tienen base en intentos de imitación de la noción europea de clasificación, a la cual Mignolo se opone, al proponer la relocalización del locus del pensamiento y al “estar donde uno piensa [...] reconociendo y confrontando tanto las categorizaciones imperiales del ser como los principios universales del saber; significa comprometerse en desobediencia epistémica, en pensamientos independientes, en pensamiento decolonial” (2011, 96 y 97). Sin embargo, una opción decolonial no implica invalidar, en este caso, la noción de tipo, sino entender que el tipo puede ser “un modelo de lo que se debe hacer, y no de lo que se debe pensar” (108).

El tipo permite la clasificación bajo la restricción de un modelo. Esta definición presupone la existencia de un motivo trascendental o de imágenes a priori, a las cuales Quatremère de Quincy llamó carácter, basado en referencias monumentales (Vidler 1987, 154). El tipo, entonces, se convierte no solo en una herramienta de clasificación, sino también en el medio para validar la producción arquitectónica como lo suficientemente trascendental para ser considerada arquitectura y lo suficientemente innovadora como para no ser una mera réplica. Si tuviésemos en cuenta la forma en que convencionalmente funcionan los talleres académicos de arquitectura, ¿no es precisamente esta pretensión de validación bajo modelos predefinidos lo que permite al profesor-crítico inscribir el trabajo de sus alumnos dentro de su matriz de modelos arquitectónicos? ¿No es esta la manera en la que la episteme canónica de la arquitectura se repite en entornos académicos? Si retomamos lo afirmado por Anthony Vidler y después por Tom Avermaete, acerca de la evolución de la noción de tipo en la arquitectura académica como el conocimiento fundamental de la disciplina, ¿qué pasa cuando ponemos esta verdad en paréntesis para evitar repetir una noción de universalidad establecida en Europa en el siglo XVIII?

Volviendo a la experiencia en el ejercicio académico Casas Encontradas de la Universidad Central, anotado al inicio de este documento, “desobedecer” la noción canónica de tipo significó poner en paréntesis la validación a priori que presupone. Poner el canon en paréntesis implicó basarse en el acercamiento subjetivo de los estudiantes de arquitectura y valorar la “ingenuidad” de sus observaciones fuera de la matriz de los modelos canónicos. También implicó la desmitificación de lo informal, que la episteme arquitectónica ha dejado fuera, al generalizarlo como un tipo de práctica edilicia producida sin el uso de cánones disciplinares. Al entender el grano fino de la informalidad, pudimos haber contribuido a construir otra episteme, la cual necesita distintos acercamientos para clasificar y validar lo que se ha producido fuera del canon moderno. Al dejar fuera la presuposición de la imagen histórico-monumental de la noción de tipo, una opción decolonial inicia desde las evidencias que permiten encontrar lo que comparte un grupo particular de edificios.

Tal cual se ha mostrado, incluso en los ejemplos “canónicos”, si dejamos afuera los discursos que los tipifican como oficialmente modernos, nos quedamos con ejemplos similarmente informales, aun comparables con aquellos ordinarios. Sin embargo, una vez desestimados los discursos que ponen algunos autores y algunas obras por encima de otras (lo formal sobre lo informal), podemos contrastarlos como lo que son en términos concretos, estableciendo categorías más pertinentes que “la forma sigue a la función” o “la liberación de la planta”. Por ejemplo, la manera en que distintos edificios de vivienda manejan sus espacios comunales puede revelar nuevas categorías que validan lo que se ha producido fuera del canon.

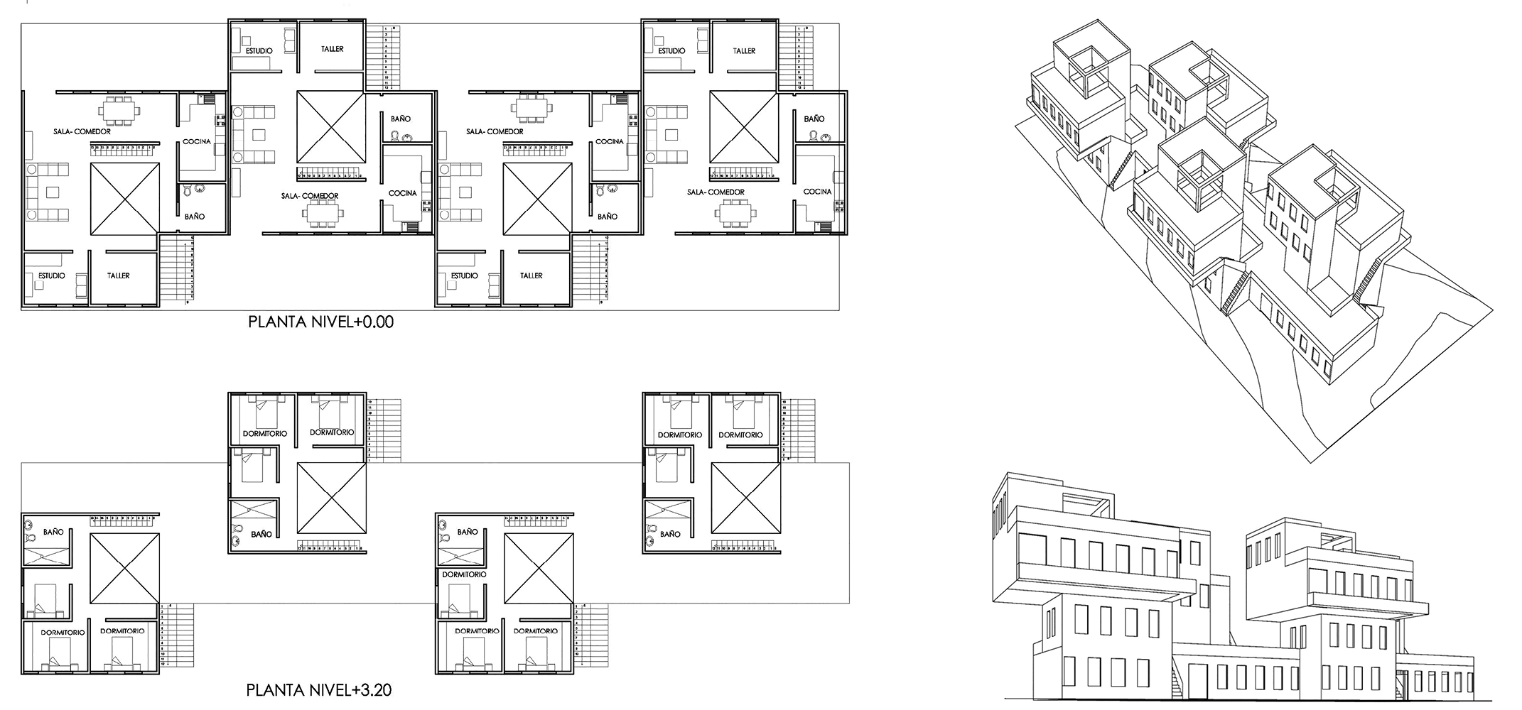
En el proyecto de vivienda Conjunto Torres Almagro, de Diego Ponce Bueno, se ha definido la regla de mantener al cuarto de servicio como una categoría común para todos los departamentos, indistintamente de su tamaño. De alguna forma, la existencia del cuarto de servicio es parte de una estrategia para construir la imagen de una mercancía elitista que sigue una tradición colonial y que también incluye la provisión de una piscina cubierta y un helipuerto como áreas comunales, que muy rara vez se utilizan. En cambio, durante la realización de Casas Encontradas, la estudiante Adriana Medina analizó un par de casas en el sector de Guamaní, al sur de la ciudad de Quito, forzadas a compartir un área común para establecer así una “relación comunitaria” (2006, 10). Estas casas “comparten un área común de lavandería y patio; lo que ocasiona la convivencia entre sus habitantes ya sea para satisfacer necesidades de limpieza o de recreación de los niños que allí habitan” (10).

La principal diferencia entre el proyecto de Ponce Bueno y el descubrimiento de Adriana recae no solo en un aspecto de diseño, sino en las interacciones sociales que promueve, que también han sido diseñadas y no son accidentales. A pesar de sus diferencias tipológicas, la primera, siendo un conjunto de torres de apartamentos, y la segunda, una vivienda comunal de baja densidad, una comparación es posible recordando la episteme racional del tipo como la identidad formal y estructural de un edificio. Mientras el diseño de Ponce Bueno separa verticalmente los espacios comunales y distribuye espacios de lavandería dentro de las áreas de servicio de cada apartamento, estas casas ordinarias de Guamaní están organizadas alrededor del área de lavado y el patio como un único espacio comunal (fig. 5). Bajo ojos funcionalistas, o cánones elitistas modernos, un espacio comunal donde coexisten actividades recreacionales con actividades de servicio sería un error.

Figura 5

Figura 5_Casa comunal. Fuente: Adriana Medina, en Casas Encontradas.

El aporte de las observaciones de los estudiantes como conocimiento arquitectónico decolonial necesita ser contrastada con ejemplos canónicos, como es el caso de Ponce Bueno en Quito, debido a que, según afirma Mignolo, “decolonizar el conocimiento no es rechazar las contribuciones epistémicas occidentales al mundo. Al contrario, implica apropiarse de estas contribuciones para después des-encadenarlas de sus diseños imperiales” (2011, 82). Dicha comparación armoniza con los conceptos establecidos por Mignolo de humanitas versus anthropos, como contrarios epistémicos más que ontológicos que son codependientes en una noción de modernidad que se construye en la diferencia colonial: humanitas como el proyecto civilizatorio que separa y toma ventaja del anthropos (96 y 97). Como lo discute Mignolo, “‘Humanitas' y ‘modernidad' [...] son conceptos que permiten a aquellos quienes manejan categorías de pensamiento y producción de lenguaje usar esa autoridad administrativa para validarse a sí mismos descalificando a aquellos quienes (‘Anthropos' quienes fueran alguna vez bárbaros y tradicionales) son clasificados como deficientes, racionalmente y ontológicamente” (82).

De esta forma, lo que se ha relegado como informal en la arquitectura, podría estar directamente relacionado con la noción de anthropos, no por su naturaleza ontológica, sino porque alguien (la verdad sin paréntesis) lo ha puesto en ese lugar. La arquitectura es categorizada cuando alguien diferencia lo formal de lo informal; pero también cuando sus habitantes son discriminados por pertenecer ya sea a humanitas o a anthropos. El discurso moderno canónico que valida las obras de Duran Ballén y Ponce Bueno esconde y relega el lugar para el anthropos, ya sea como “cuarto de servicio” o como “arquitectura informal”. El cuarto de servicio equivale a la idea de Mignolo de “el lado más oscuro de la modernidad”, porque “escondida detrás de la modernidad [está] la agenda de la colonialidad; esa colonialidad [es] constitutiva de la modernidad; esa colonialidad [es] el secreto vergonzoso de la familia, guardado en el ático, fuera de la vista de los amigos y la familia” (2011, xxi).

En las observaciones tipológicas de Adriana Medina, el espacio comunal es una contribución epistémica al campo de la arquitectura desde la perspectiva del anthropos como un “conocimiento geo y corpóreo-político” (Mignolo 2011, 82). No es accidental que sus observaciones concluyan valorando los aportes sociales del espacio comunal. Esta conclusión es alcanzable al poner la verdad canónica acerca de la noción de tipo en paréntesis. Entonces la noción de tipo “podría coexistir en un mundo pluriversal, un mundo en el cual la verdad y la objetividad en paréntesis son soberanos. Ya que no hay entidad que pueda ser representada por el común, el bien común, o lo comunal” (52).

Los resultados de esta experiencia en un ejercicio de taller de diseño son un ejemplo del proceso de descolonización de los tipos arquitectónicos. La investigación acerca de tipologías ordinarias en Quito demostró que los espacios comunales están siempre presentes, pero casi nunca comparten una configuración espacial común: a veces como patios, otras como terrazas o escaleras. También demostró la relación intrínseca de la privacidad con actividades comerciales como promotora de espacios comunes. Los estudiantes tuvieron que sintetizar estas características para diseñar un proyecto de vivienda colectiva y, por ende, tuvieron que crear tipologías a partir de estas observaciones dispersas. Como se muestra en el caso de la estudiante Katy Santillán (fig. 6), su diseño de vivienda colectiva utiliza un conjunto de terrazas, patios y escaleras que son a propósito abundantes para crear situaciones similares a aquellas encontradas en las viviendas informales. Sin embargo, estas características espaciales son tipológicamente distintas de aquellas encontradas en Quito, pero podrían compartir características con el proyecto Hábitat 67 de Moshe Safdie. En este caso, la investigación tipológica no es útil como un estándar para repetición o como evidencia de una tradición que vaya a ser acogida; se acerca más a ser un punto de partida para procesos de experimentación.

Figura 6

Figura 6_Proyecto estudiantil de pregrado de vivienda colectiva en Quito. Fuente: Katy Santillán.

A pesar de la coincidencia y posible influencia de la obra de Safdie, el compararlo con el proyecto experimental de Katy Santillán sería perjudicial para los propósitos descolonizadores. Una comparación es viable solo si la verdad acerca de los tipos arquitectónicos —esto es, su horizonte canónico— se pone en paréntesis. Entonces, Safdie o el Hábitat 67 —o cualquier otra imagen discursiva de ejemplos canónicos de arquitectura moderna— ya no sería un modelo prejuiciado para contrastar cualquier proyecto que comparta sus características tipológicas; ya no sería la verdad. En otras palabras, el diseño arquitectónico no necesita referentes, sino ejemplos empíricos que operen en simultáneo.

Si la noción de tipo permite una validación a posteriori para ciertos autores selectos, es reduciendo edificios a imágenes: la producción arquitectónica forzada en una matriz discursiva basada en prejuicios. Cuando ponemos esta noción de tipo-como-imagen en paréntesis, la realidad del medio construido se convierte en un terreno fértil para aprender de él, en lugar de un fondo contextual abstracto para que un proyecto arquitectónico emerja. Estas lecciones empíricas podrían ejecutarse comprometiéndose en una episteme descolonizada de tipo, esta vez no de una forma acrítica y estereotipada. ¿Podemos aprender de ejemplos arquitectónicos no canónicos, comprometidos con el canon, trabajando a favor y en contra de este?

bibliografía

  1. Avermaete, Tom. 2021. “A Black Box?: Architecture and its Epistemes”. En The Tacit Dimension: Architecture, Knowledge and Scientific Research, editado por Lara Schrijver, 69-82. Leuven: Leuven University Press.
  2. Cañizares-Esguerra, Jorge. 2009. “Typology in the Atlantic World: Early Modern Readings of Colonization”. En Soundings in Atlantic History: Latent Structures and Intellectual Currents 1500-1830, editado por Bernard Bailyn y Patricia Denault, 237-264. Cambridge: Harvard University Press.
  3. Cheng, Irene. 2020. “Structural Racialism in Modern Architectural Theory”. En Race and Modern Architecture: A Critical History from the Enlightenment to the Present, editado por Irene Cheng, Charles L. Davis II y Mabel O. Wilson, 134-152. Pittsburgh: University of Pittsburgh Press.
  4. Fantinatti, Aline. 2018. “Architecture of Segregation: The Persistence of Laundry Rooms and Service Areas in Brazilian Residential Developments”.Medium, 26 de marzo. https://medium.com/aline-fantinatti-in-english/architecture-of-segregation-ae34c5ebdf01
  5. Kaijima, Momoyo, Koruda y Tsukamoto. 2014.Made in Tokyo. Tokyo: Kajima Institute Publishing.
  6. Kingman, Eduardo. 2006.La ciudad y los otros: Quito 1860-1940. Higienismo, ornato y policía. Quito: Flacso.
  7. Lara, Fernando. 2022. “La abstracción es un privilegio”.Platform, 7 de junio. https://www.platformspace.net/translations/la-abstraccin-es-un-privilegio
  8. Lara, Fernando Luiz y Felipe Hernández, eds. 2021.Decolonizing the Spatial History of the Americas. Austin: Center for American Architecture and Design.
  9. Lara, Fernando Luiz y Felipe Hernández, eds. 2022.Spatial Concepts for Decolonizing the Americas. Cambridge: Cambridge Scholars Publishing.
  10. Lee, Christopher. 2011. “Type”.The City as a Project, 16 de agosto. http://thecityasaproject.org/2011/08/type/
  11. Medina, Adriana. 2016. “Casa comunal”. En Casas Encontradas, 10. https://issuu.com/marcosalazarvalle/docs/casas_encontradas_maqueta_final
  12. Mignolo, Walter. 2011. The Darker Side of Western Modernity. Durham: Duke University Press.
  13. Moneo, Rafael. 1978. “On Type”.Oppositions13 (verano): 22-45.
  14. Moya, Rolando. 2014. “La arquitectura como toma de riesgo”. En Diego Ponce Bueno: Arquitectura y ciudad, editado por Ponce, María y Fabiano Cueva, 16-20. Quito: Trama.
  15. Moya, Rolando y Evelia Peralta. 2014.Sixto Durán Ballén: Planificador, urbanista y arquitecto pionero de la arquitectura en Ecuador. Quito: Trama
  16. Peralta, Evelia. 2014. “¿Más allá de la arquitectura moderna internacional?”. En Diego Ponce Bueno: Arquitectura y ciudad, editado por Ponce, María y Fabiano Cueva, 36-41. Quito: Trama.
  17. Ponce, María y Fabiano Cueva. 2014.Diego Ponce Bueno: Arquitectura y ciudad. Quito: Trama.
  18. Vidler, Anthony. 1977. “The Idea of Type: The Transformation of the Academic Ideal, 1750-1830”. Oppositions 8 (primavera): 95-115.
  19. Vidler, Anthony. 1987. The Writing of the Walls. New York: Princeton Architectural Press.
  20. Walker, Enrique. 2017. El diccionario de ideas recibidas: Bajo constricción. Santiago: Ediciones ARQ.

notas

1 Entre otros cargos relevantes, Sixto Durán Ballén fue profesor fundador en la Facultad de Arquitectura y Urbanismo de la Universidad Central del Ecuador, alcalde de Quito y presidente del Ecuador.

2 La empleada doméstica es, por lo general, una mujer joven de raíces indígenas, muy común en las clases medias y altas de Quito.

3 "Humanitas" es el término utilizado por Mignolo para identificar el proyecto de civilización de la modernidad occidental que sitúa a todas las demás poblaciones no occidentales como incivilizadas.